CENTRALA TERMICA CONDENSATIE ARCA PIXEL MX 20/25 PN

ARCA CALDAIE
3.500,00 Lei
In stoc
Limita stoc
Adauga in cos
Cod Produs: MX20/25 Ai nevoie de ajutor? 0740.11.11.99
Adauga la Favorite Cere informatii
  • Descriere
  • Review-uri (0)

Pixel MX PN este noua centrală cu condensare cu preamestec miniaturizată cu tehnologie electronică digitală ARCA. Un proiect articulat bazat pe o tehnologie inovativă extrem de afidabilă care utilizeaza un schimbător din oțel inox monotub pentru a oferi utilizatorului maximum de confort și economisire energetica. Modele: de la 20 la 35 kW. Modularea flăcării optimale limitate la 1:7 pentru a garanta cea mai mare silențiozitate oferită de un ventilator cu turații variabile, folosit cu viteză redusă și cu range-ul cel mai performant. Particularitățile camerei etanșe apără centrala de posibile aspirări de impuritați, de apă sau de insecte foarte periculoase pentru ventilator și pentru vana de gaz.

O arhitectura curata - creata pentru o intretinere usoara

- Schimbător monotub cu secțiune a traseului cât mai largă posibil

- Sifon condens uscat

- Camera etanșă protejează centrala de posibile aspirări de impuritați sau de umiditate și garantează cea mai mare silențiozitate a sistemului

- Spațiul rezervat vasului de espansiune permite instalarea a 3 modele: 7-8-10 litri

- Pompă electronică cu înaltă eficiență

- Pe partea superioară a centralei este plasată vana de încărcare a vasului de espansiune, care permite verificarea și umflarea presiunii vasului fără să fie deschisă centrala.

- Vizorul flacării pentru controlul vizual al combustiei

TEHNOLOGIA CONDENSĂRII PNEUMATICE

Aceasta tehnologie, deja prezentă pe piață, cu un concept extrem de simplu, este îmbinată intr-un proiect articulat, și are ca obiectiv inovarea, păstrând performanțele cu privire la consum, afidabilitate și maxim de comfort pentru utilizator.

ARZĂTOR PREMIX DIN OȚEL INOX CU MICROFLĂCARĂ

Arzătorul din oțel inox cu microflăcară aflat în interiorul schimbătorului este folosit cu un range de putere limitat 1:7. În acest mod solicitările termice și temperatura de lucru limitată garantează o lungă durată de viață componenetelor.

SCHIMBĂTOR MONOTUB DIN OȚEL INOX CU DEBIT MĂRIT

Schimbătorul monotub cu debit mărit și cu pierderi de sarcină scăzute, constituie o evoluție importantă pentru sectorul centralelor cu condensare, față de vechile modele ale schimbătorilor cu fluxuri paralele, încă prezenți pe piață. Cu aceasta soluție tehnologică, centrala rezultă mult mai rezistentă în prezența unor instalații necurațate complet de reziduri organice sau neorganice. O tehnologie care pentru afidabilitatea sa se aproprie de cea a centralei cu dublu schimbător, în conformitate cu rigurozitatea bazei științifice care utilizează materiale nobile precum oțel inox pentru a desfășura diferite funcții în special cea de condensare directă.

GRUPUL HIDRAULIC DIN ALAMĂ CU VANĂ CU 3 CĂI MOTORIZATĂ

Grupul hidraulic este realizat din monobloc de alamă cu robinet de încărcare cu debitul redus și by-pass de serie. Schimbătorul din inox apă-apă cu 12 plăci (14 plăci la 30 și 35 kW) permite erogarea apei calde menajere în mare cantitate și cu temperatura controlată oferind o mare rezistența la depuneri de calcar. ARCA a ales să arăte în cataloagele propriile componente cu scopul evidențierii calitaților, ca de exemplu grupul din alamă, garanția unei lungi durate de folosire. Soluția cu vană cu 3 căi motorizate cu consum electric redus, permite un control mai rapid al funcției antiîngheț și cel al producerii apei calde menajere chiar cu debite limitate.

SPĂLAREA INSTALAȚIEI ȘI SEPARATOR DE NĂMOL 

Pentru buna funcționare a centralei este recomandată o spălare abundentă a instalației cu apă curentă și cu aditiv potrivit, cu scopul îndepărtării nămolului, nisipului și rezidurilor solide de orice natură, mai ales în instalații vechi fără să neglijăm impuritățile și rezidurile de prelucrare aflate în calorifere și în portprosoape. Este necesar și un separator de nămol sau filtru antimagnetită,, de conectat pe returul centralei și de controlat în timpul întreținerii programate a centralei. În cazul în care au fost folosite produse sau soluții de curățare a instalației, cu scopul evitării daunelor nereversibile ale schimbătorului , este obligatorie îndepărtarea lichidului agresiv urmată de o clătire a instalației cu apă curentă. În cazul folosirii antigelului glicolat, acesta trebuie să aibe o valoare de aciditate inferioară lui Ph 6.

Digitală cu autodiagnosticare și memorie permanentă pentru versiune pneumatica

Gestiunea centralei, controalele, reglajele, autodiagnosticarea și siguranțele sunt asigurate de o electronică digitală de ultima generație care arată pe un display luminos toate funcțiile generatorului. Maximizarea randamentului și deci reducerea consumului cer, pe lângă o electronică performantă și dotarea cu o sondă exterioară care îi asigură instalației o temperatură minimă de funcționare, în orice anotimp, evidențiind calitățile condensatoare ale centralei, care, în sezoanele intermediare, atinge randamente apropriate valorilor din tabel.

RANDAMENT - Funcționarea centralei, atinge minimum consumului de gaz când temperatura turului este sub 55 °C. Randamentul poate atinge 108,66 % în cele mai bune condiții de funcționare, plecând de la un minim de 98% în cele mai rele condiții (cu temperatura apei de 70°C rezultând imposibilitatea de a condensa).

SILENȚIOASĂ - Un ventilator din aluminiu turnat sub presiune și un circulator “high quality” electronic cu consum redus, dau produsului o silențiozitate de funcționare dintre cele mai înalte ale categoriei.

EVACUARE LUNGĂ - Puterea ventilatorului de fum permite evacuarea până la 60 de metri cu tubulatura separată Ø 80 mm și 10 m cu tubulatura coaxială 60/100 mm. Centralele cu condensare cer coșuri de fum speciale, adaptate împotriva puterii corozive a fumului de ardere. Este posibilă și evacuarea de Ø 50 mm, însă consultați cartea centralei pentru mai multe informații.

PRELUNGIRE GARANȚIE - ARCA împreuna cu centrele de service autorizate, oferă tuturor clienților posibilitatea extinderii la 6 ani a garanției centralei murale, păstrând astfel o perioadă mai lungă de comfort și de siguranță. Pentru mai multe informații contactați distribuitorii ARCA sau direct: arca.romania@gmail.com

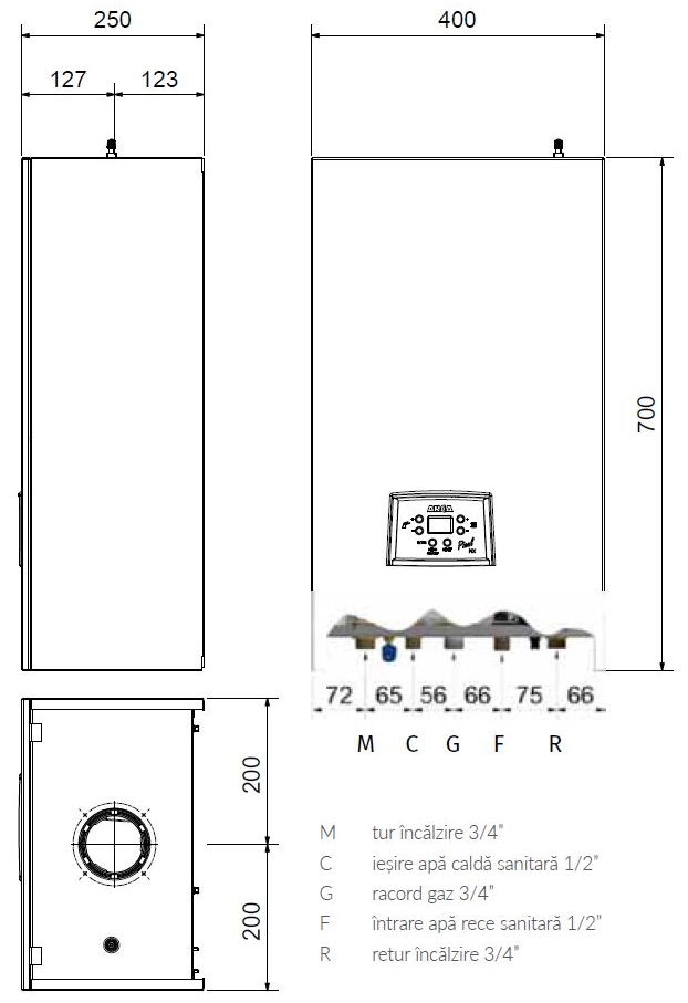
DIMENSIUNI REDUSE - Arhitectură centralei este rezultatul unui studiu aprofundat al funcțiilor și al spațiilor care permit o plasare rațională ale componentelor pentru satisfacerea exigențelor de accesibilitate în timpul întreținerii programate periodice. Rezultă cea mai mică centrala cu condensare de pe piață cu dimensiuni de 700 x 400 x 250 mm. Alegerea folosirii camerei etanșe în loc de furtunul de conectare dintre ventilator și aspirare, garantează o silențiozitate mărită și previne posibilitatea apariției apei (datorită condensului sau ploii) sau insectelor din vana de gaz.

 

Putere Termică Nominală rif. PCI (80°C/60°C): 21 kW

Putere Termică Minimă rif. PCI (80°C/60°C): 3.7 kW

Putere Nominală rif. PCI (80°C/60°C): 20.4 kW

Putere Nominală cu condensare rif. PCI (50°C/30°C): 22.1 kW

Putere Minimă rif. PCI (80°C/60°C): 3.5 kW

Putere Minimă cu condensare rif. PCI (50°C/30°C): 3.9 kW

Debit termic util sanitar: 25.5 kW

Randament Util Debit rif. PCI (80°C/60°C): 96.9 %

Randament cu sarcină redusă rif. PCI (30% di Pn-50°C/30°C): 97.1 %

Debit Gaz cu debit nom. Metan G20 (2E+): 2.1 m3/h

Presiune gaz din rețea Metan G20 (2E+): 20 mbar

CO2 (G20): 9%

NOx: clasa 6

Încălzire apă profil de sarcină declarat: profil XL

Încălzire ambient clasă energetică: clasa A

Eficență energetică de sezon încălzire: 91.7 %

Set point minim Încălzire: 35 °C

Set point maxim Încălzire: 80 °C

Volum de apă în centrală: 0.8 l

Volum de apă vas de expansiune: 7 l

Presiune vas de expansiune: 1 bar

Presiune minimă circuit primar: 0.5 bar

Presiune maximă circuit primar: 3 bar

Presiune pompă disponibilă instalație de încălzire la debit de Q=1000: 230 mbar

Set point minim Sanitar: 35 °C

Set point maxim Sanitar: 60 °C

Debit continuu apă caldă ∆T= 30°C: 11.9 l/min

Debit continuu apă caldă ∆T= 35°C: 10.2 l/min

Debit Sanitar Minim: 3 l/min

Presiune Sanitar Maximă: 10 bar

Presiune Sanitar Minimă: 0.8 bar

Tensiune/frecvență de alimentare: 230/50 V/Hz

Putere electrică absorbită: 45 W

Racorduri Încălzire: 3/4"

Racorduri Sanitar: 1/2"

Racorduri Gaz: 3/4"

Înălţime: 700 mm

Adâncime: 250 mm

Lățime: 400 mm

Greutate: 31 Kg

Grad de protecție: IPX4D

Omologare CE: 1312

 

KIT DE EVACUARE INCLUS

GARANTIE STANDARD 2 ANI CU POSIBILITATE DE EXTINDERE PANA LA 6 ANI

Vezi mai mult Informatii conformitate produs
Daca doresti sa iti exprimi parerea despre acest produs poti adauga un review.

Review-ul a fost trimis cu succes.

Compara produse

Trebuie sa mai adaugi cel putin un produs pentru a compara produse.

A fost adaugat la favorite!

A fost sters din favorite!